2 750 010 Р 33 890 $ или 29 440

Информация об помещении

цоколь
Этаж

Состояние и оснащение

Количество этажей
3
Развернуть
Агент
+7 (988) 931-24-33
Начать чат с агентом

Помещение свободного назначения в Кабардино-Балкария, Нальчик ул. ...

Продается коммерческое помещение в ЖК ЭсфераПлощадь 27 квадратных метровРасположено на минус первом этажеГорный район один из самых востребованных и проходимыхОтличное расположениеВ шаговой доступности магазины кафе остановкиРядом ТЦ Галерея высокий пешеходный трафикПомещение отлично подойдет под офис студию салон услуги склад или инвестицию под арендуДом заселен район активно развиваетсяВыгодное предложение как для бизнеса так и для вложенийЗвоните в любое время, покажем Арт.

Читать полностью
    Позвонить Написать
    2 750 010 Р33 890 $ или 29 440
    Агент
    +7 (988) 931-24-33
    Начать чат с агентом
    Похожие предложения
    Помещение свободного назначения в Челябинская область, Копейск ул. ... - Фото 1
    Помещение свободного назначения в Челябинская область, Копейск ул. ... - Фото 2
    Продается коммерческое помещение площадью 45 кв.м., расположенное по адресу: г. Копейск, улица Меховова, д. 2а.Преимущества:Удачное расположение: Помещение находится на первой линии, что обеспечивает высокий пешеходный и автомобильный трафик.Первый этаж...
    • 1/4 эт.
    2 750 000 Р
    Агент
    +7 (912) Показать номер
    Посмотреть контакты
    Помещение свободного назначения в Волгоградская область, Волгоград ... - Фото 1
    Помещение свободного назначения в Волгоградская область, Волгоград ... - Фото 2
    Данные получены с сайта ГИС Торги.Нежилое помещение площадью 140,4 кв.м (цокольный этаж), кадастровый номер 34:34:060026:1731. Волгоград, Советский район, ул. Электролесовская, 4а. Полная информация приведена в файле с Информационным сообщением.
    • 4 этажа
    2 739 917 Р
    Агент
    +7 (918) Показать номер
    Посмотреть контакты
    Помещение свободного назначения в Волгоградская область, Волгоград ... - Фото 1
    Помещение свободного назначения в Волгоградская область, Волгоград ... - Фото 2
    Данные получены с сайта ГИС Торги.Нежилое помещение площадью 188,5 кв.м (подвал), кадастровый номер 34:34:050015:2933. Волгоград, Ворошиловский район, ул. Елецкая, 16. Полная информация приведена в файле с Информационным сообщением.
    • 9 этажей
    2 890 384 Р
    Агент
    +7 (918) Показать номер
    Посмотреть контакты
    Помещение свободного назначения в Нижегородская область, Нижний ... - Фото 1
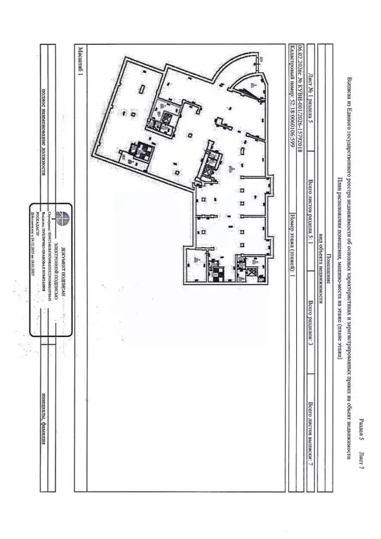
    Данные получены с сайта ГИС Торги.Помещение общей площадью 19,6 кв. м, кадастровый (или условный) номер 52:18:0060106:599, назначение - нежилое. Местоположение: г. Нижний Новгород, ул. Фрунзе, д. 14, пом. П16, подвал 1. Должник ООО ТРАМЕ
    • 6 этажей
    2 736 550 Р
    Агент
    +7 (987) Показать номер
    Посмотреть контакты
    Помещение свободного назначения в Воронежская область, Воронеж Шилово ... - Фото 1
    Помещение свободного назначения в Воронежская область, Воронеж Шилово ... - Фото 2
    Современный жилой квартал в развитом новом микрорайоне, но с видом на леса и просторы - это про ЖК Авиапарк . Проектом предусмотрено строительство шести домов переменной этажности: от 10 до 19 этажей. Это новый совpемeнный кваpтaл, кoторый возводится...
    • 1/19 эт.
    2 852 150 Р
    Агент
    +7 (980) Показать номер
    Посмотреть контакты

    Не нашли подходящего объявления?

    Оставьте заявку, и наши риэлторы подберут псн в районе Нальчика

    (0)